£ 16 PER SQ FT Leasehold
3,255 sq ft
Overview
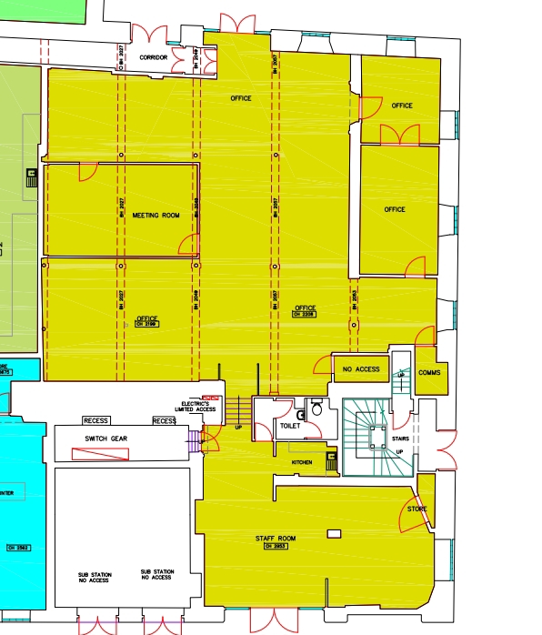
Ground floor office with dual aspect of 3,255 sq ft.
The office is situated on the ground floor and provides a large open plan area with meeting rooms, kitchen and WCS
Rent = £52,100 pax + VAT
Rates = approx £20,000
Service charge - Budget @ £21,500 to 31.3.26
Parking available at £1,520 per annum per space
Minimum 3 year lease
Features
- High quality modern office of 3,255 sq ft
- Ground floor
- Parking
- Free meeting rooms and training room in building
- Close to Waitrose
- Minimum 3 year lease
- Competitive terms
- 24 hour access
Location
The Steam Mill is located to the east of the city centre, close to St Oswalds Way (inner ring road) and the A51 which provides an arterial route out of the city centre. The M53 motorway (Junction 12) is situated approximately two miles to the north.
Chester Station is within a short walk of the property, as is Foregate Street, the prime shopping area of the city.
As one of Britain’s great heritage cities, Chester offers its residents a quality lifestyle rarely rivalled anywhere in the UK.
To live and work in Chester is a truly pleasurable experience. The quality of commercial, family and social life is quite exceptional and has been a major influential factor for companies locating and expanding here.
The city boasts some of the country’s finest shopping in the north west region, abundant parks and open spaces and a huge range of leisure and sporting opportunities including eight golf courses, Chester Zoo and the country’s oldest racecourse.
Floorplan



