£ 24,100 PA Leasehold
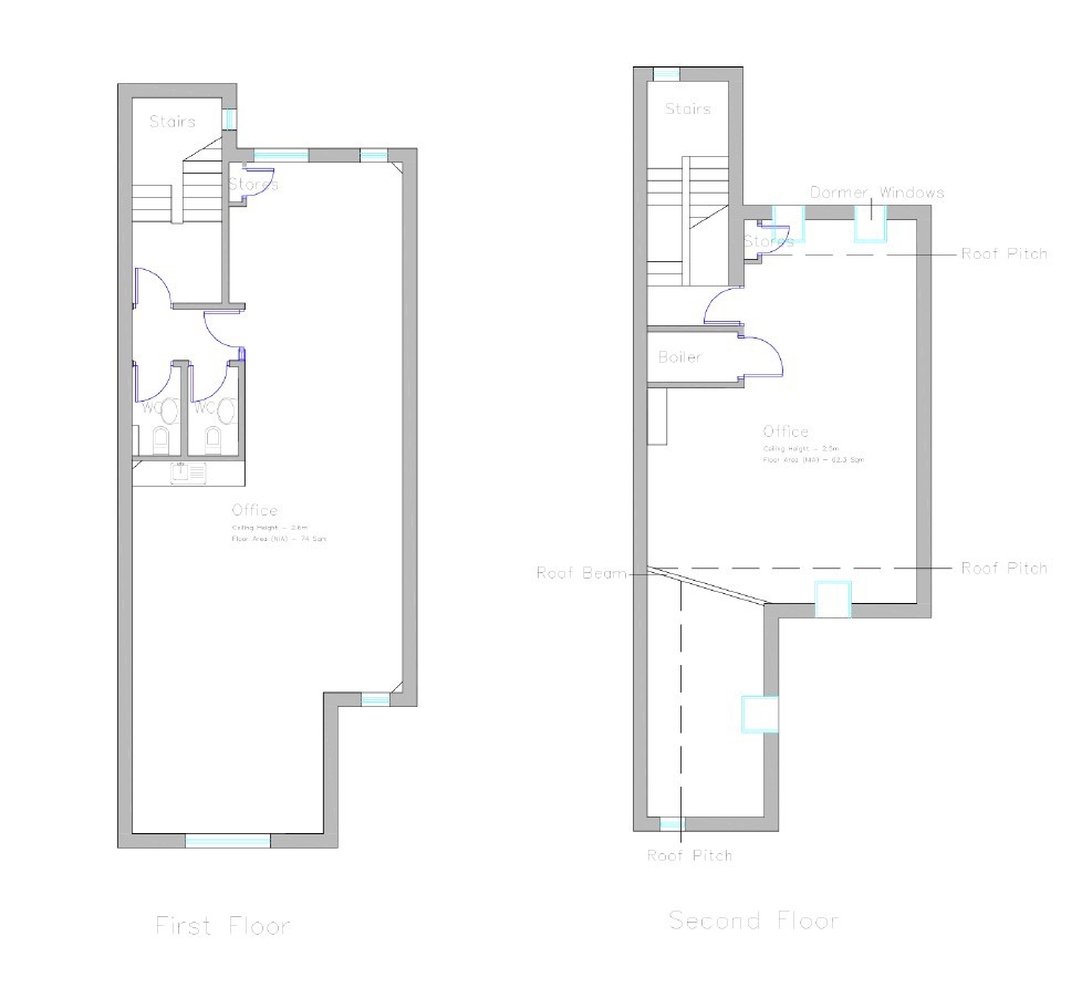
1,432 sq ft
Overview
Self contained office in Chester city centre with 2 parking spaces
Available early 2026
1,432 sq ft + 2 car spaces
Over first and second floors
Dedicated ground floor entrance
£24,100 per annum payable quarterly in advance
Rates payable c £7,000 with rates relief available
Service charge = £8,500 to include gas heating and external maintenance
EPC C
Features
- Self contained office
- Available early 2026
- Fully fitted out to a high standard
- Open plan office space
- Kitchen
Floorplan



