£ POA Freehold
4.50 acres
Overview
The site comprises c 1.06 ha (2.63 acres) fronting Booth Lane, (A533) between Middlewich and Sandbach.
The former EON power station adjoins the rear of the site and is able to offer electric vehicle charging facilities.
The site is effectively square in shape, level and laid out to grass. The main infrastructure is in place to service the unit. A topographical and Phase I Desk Top Study can be made available.
Features
- Comprises 1.03 hectares (2.63 acres)
- Allocated Employment Land
- Site is located to the west of the M6
Location
The site is located on the northern side of the A533, Booth Lane approximately 3 km north west of Sandbach, the A533 continues to the North West linking with Middlewich. The site is located to the west of the M6 with good access available to both Junction 17 to the south through Sandbach and Junction 18 to the north through Middlewich.
The overall area is bounded to the east by a railway line and the west by the A533 and will benefit from the new Middlewich Eastern Bypass (MEB).
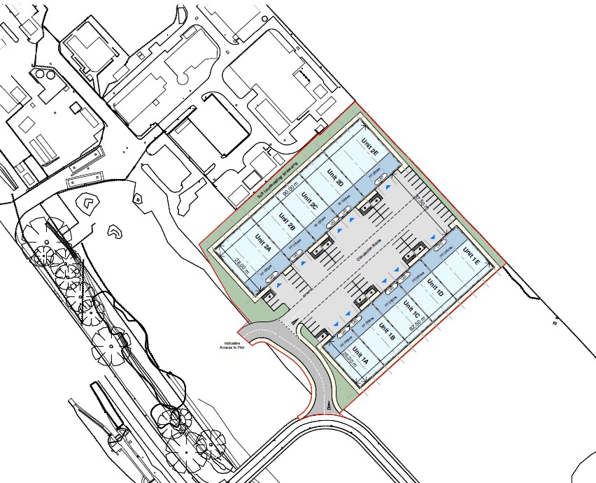
Floorplan



