£ 975,000 Freehold
3.60 acres
Overview
A rare opportunity to acquire a highly versatile property nestled within 3.6 acres of beautiful Cheshire countryside. This unique estate offers lifestyle flexibility and exciting leisure business potential.
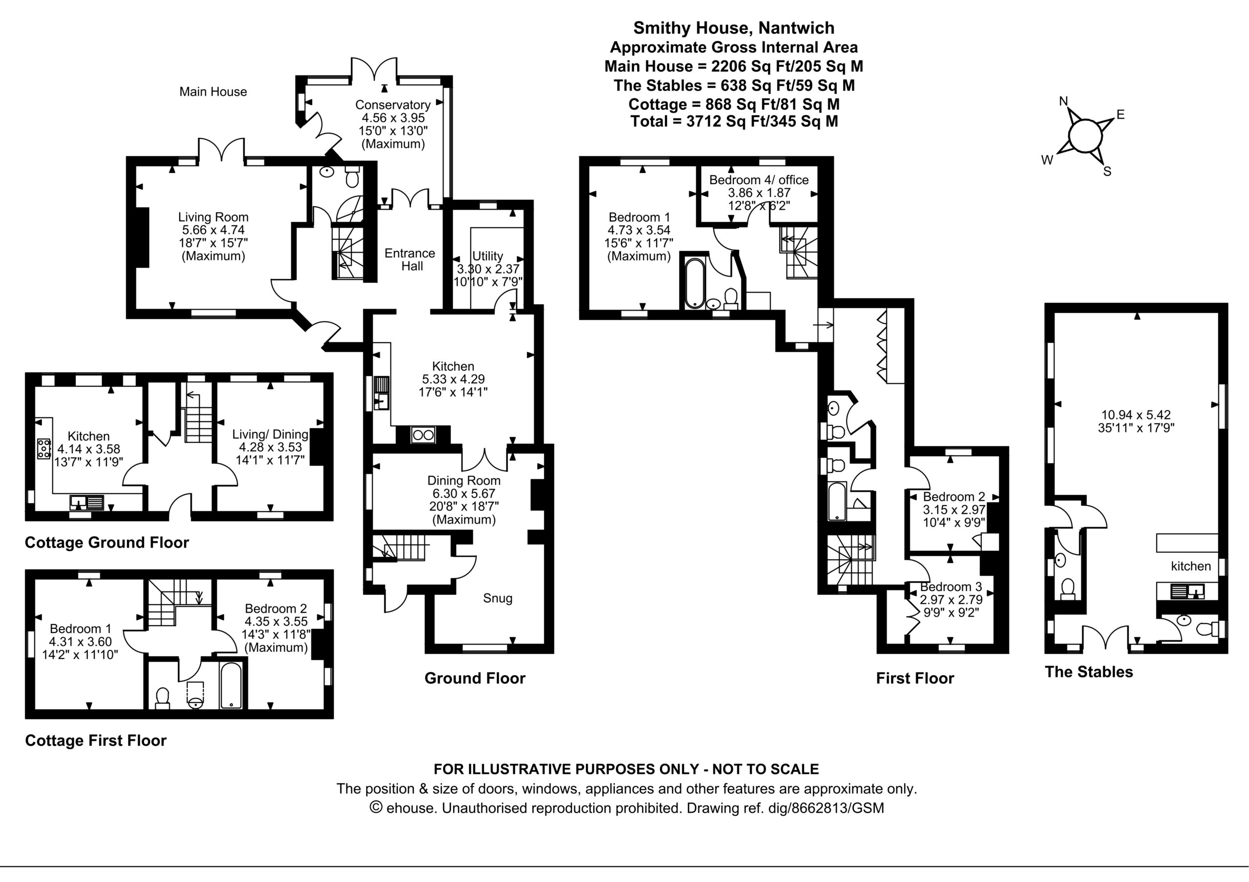
Smithy House is a substantial, semi-detached, four bedroom country residence, complemented by two additional charming dwellings: a detached two-bedroom Coach House (Smithy Cottage) and a single-storey residential building (The Stables). All three properties are beautifully arranged around a picturesque gravel courtyard, offering generous parking and a tranquil setting.
Freehold - Offers over £975,000
Features
- Four-bedroom country house
- Detached two-bedroom Coach House
- Detached single-storey annex/studio
- Planning permission for six mobile glamping pods on the land
- Excellent access to sought-after Cheshire villages
- Set within 3.6 Acres
- Located 6 miles from Nantwich
- Leisure business potential
- Beautifully arranged around a picturesque gravel courtyard,
- Ample off road parking
Floorplan
