Ground Floor Suite - 85a Bowen Court

St. Asaph, LL17 0JE

Share this Property

£ 825 PCM Leasehold

Size 825 sq ft

Overview

Bowen Court is located on St Asaph Business Park, the premier business park in North Wales. The development consists of fourteen highly specified office units providing fully refurbished offices.

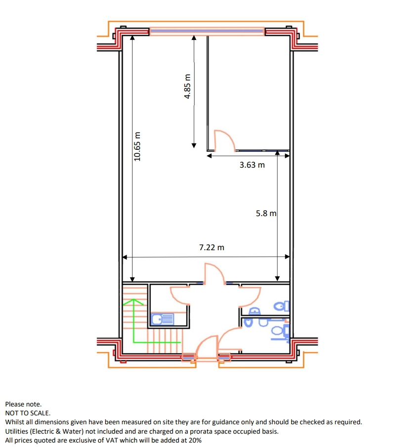
An open plan ground floor office with meeting room / store
Under refurbishment
Available Feb 2026
Can be partitioned to suit
Excellent natural light
Electric heating
Perimeter trunking
Fire and security alarm
CCTV & ANPR System
Gents and Ladies/Disabled toilets
Shared Kitchen
Allocated on-site parking.

85a - 825 sq ft
£825 per calendar month including service charge
4 car spaces

Costs are inclusive of service charge but exclusive of water and electricity
Small business rate relief may be available to qualifying companies

Features

  • Attractive landscaped development
  • Flexible terms from 12 months
  • Competitive rents
  • On site café and external seating
  • Fast broadband availability
  • Easy access to A55
  • Generous on-site parking
  • Qualifies for rates relief

Floorplan

Map View

Street View

To Let
View Property View Property

Ground Floor Suite - 85a Bowen Court

St. Asaph, LL17 0JE

Size 825 sq ft

£ 825 PCM Leasehold

View Property
To Let
View Property View Property

6a Chowley, Chowley Oak Lane

Tattenhall, CH3 9GA

Size 3,066 sq ft

£ 15 PER SQ FT Leasehold

View Property
To Let
View Property View Property

Nicholas House

Chester, CH1 2NU

Size 4,800 - 19,500 sq ft

£ 22.50 PER SQ FT Leasehold

View Property
Recently Viewed